三維漢界機器(山東)股份有限公司 國家高新技術企業,具有自主知識產權并獲得多項國家發明專利!【全自動噸袋包裝機、全自動裝車機、自動碼垛、AGV智能立體庫】

全自動噸袋包裝機,也叫全自動大袋包裝機、全自動噸袋包裝秤、全自動大袋包裝秤,是一種全自動噸袋包裝設備,全自動噸袋包裝機克服了噸袋包裝機(噸袋包裝秤、大袋包裝機、大袋包裝秤)需要人工上袋(掛袋)的缺點,實現了噸袋的自動上袋、物料自動稱量、自動灌袋、自動輸送、自動熱合封口、自動噴碼打印相關生產信息;全自動噸袋包裝機可以應用在需要大袋包裝的任何生產線,可以完美替代半自動人工上袋噸袋包裝機,顆粒物料和粉體物料皆可以使用全自動噸袋包裝機實現物料的自動包裝盒輸送。隨著人工費用的增加,全自動噸袋包裝機的使用推廣范圍越來越大。
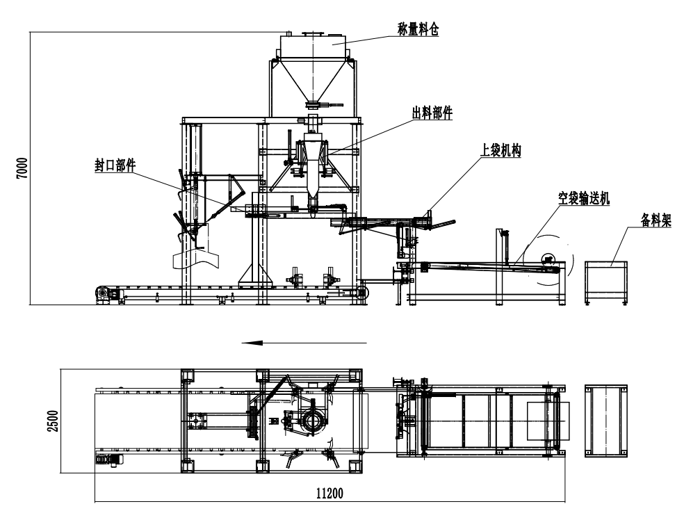
全自動噸袋包裝機功能
1、噸包袋的自動輸送
2、噸包袋自動上袋
3、噸袋包裝袋自動升降
4、自動充氣漲袋
5、物料自動灌包
6、包裝袋中氣體自動排出
7、噸袋袋口自動熱合封口
8、成品噸包袋的輸送
9、生產日期、批號等資料自動噴碼打印
10、包裝袋袋口自動整理
11、噸包裝袋袋口系帶調整,利于叉車或行車起吊碼垛或者裝車。
噸袋按照150條袋子的規格卷成一卷,人工將整捆包裝袋放入袋框,空包裝袋在輸送機上前移,當包裝袋袋口到達合適位置時,傳感器將包裝袋到位信號傳送到總控PLc,plc發出指令,上下吸盤將包裝袋袋口吸住并拉開,機械手將包裝袋袋口夾住,并將包裝袋前移、提升,將包裝袋套入下料口;同時稱重系統在接受到包裝袋套袋成功信號后,將物料按照設定重力投入噸包裝袋中,完成物料的灌裝。灌裝完成后,撐袋機構將包裝袋袋口拉伸,超聲波封口機將袋口縫合,輔助機構將袋口整理,調姿機構將包裝袋系帶提起并調整系帶方向,利于后續碼垛系統自動碼垛。至此,系統完成一次噸袋的全自動灌裝過程。


包裝范圍:500-1000kg
包裝速度:60-180包/小時
包裝物料:顆粒、粉料、混合
稱重精度:0.2%F、S
包裝材質:袋口覆膜噸袋
給料方式:根據物料自選
壓縮空氣:0.5-0.8Mpa,1m³/min
功率電源:24kw/h,AC380V 50Hz
1、確認物料特性
2、確定安裝位置和空間尺寸
3、對于粉體物料,需要配置除塵系統
4、全自動噸袋包裝機的包裝精度和包裝速度的約定
5、后續碼垛系統對全自動噸袋包裝機的系帶位置高度、方向的要求和限定
6、如需防爆,需要確定防爆等級
7、確定設備耗氣量。
8、根據物料比重和物料性能確定包裝袋尺寸。